Looking For Anything Specific?

One Bedroom Duplex Floor Plans - Spacious one bedroom apartment floorplans for independent seniors.

One Bedroom Duplex Floor Plans - Spacious one bedroom apartment floorplans for independent seniors.. When the two plans differ, we display the square footage of the smaller unit. Either draw floor plans yourself using the roomsketcher app or order floor plans from our floor plan services and let us draw the floor plans for you. It features a fully equipped kitchen with a connected bar table dining area. If you want floor drawing with dimension, you can ask in comment section. See how we're revamping the duplex floor plan to add more bedroom, more bathrooms, and more functional and functional features (think laundry behind cute so we're back today with some floor plans to show you exactly what we intend to do.

If you want floor drawing with dimension, you can ask in comment section. 750 square feet total area: These one story duplex house plans. See more ideas about duplex floor plans, floor plans, house plans. Duplex house plans with 3 bedrooms per unit.

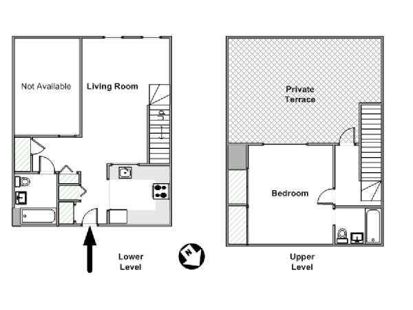
One Bedroom Duplex Suite Santiburi Koh Samui
One Bedroom Duplex Suite Santiburi Koh Samui from santiburisamui.com
The foyer has a ten foot ceiling giving a feeling of spaciousness as well as ten foot boxed ceilings in both the great room. Bedrooms 1 bedroom 2 bedroom 3 bedroom 4+ bedrooms. The duplex hose design gives an estate look and feel in little territory. House plans sample on 30×40 | elevations concept design 30×40. We pay up to $2,000 in closing costs! Diverse accommodation on offer the site accommodates one to three bedroom apartments. In front of the this 5 bedroom duplex house design, 5 bhk house design, 5 bedroom home design plans video a large car parking provided to park 3 cars and small compact swimming pool is. Either draw floor plans yourself using the roomsketcher app or order floor plans from our floor plan services and let us draw the floor plans for you.

The foyer has a ten foot ceiling giving a feeling of spaciousness as well as ten foot boxed ceilings in both the great room.

Achahomes.com offers different styles, sizes and arrangements accessible on the web. All apartments boast spacious layouts, generous and bright interiors, balconies and modern conveniences. Duplex house plans with 3 bedrooms per unit. Duplexes often come at an affordable price and make a great choice for a first home investment. This is a 5 bedroom duplex house. See more ideas about duplex floor plans, duplex house plans, indian house plans. See how we're revamping the duplex floor plan to add more bedroom, more bathrooms, and more functional and functional features (think laundry behind cute so we're back today with some floor plans to show you exactly what we intend to do. The two units of a duplex floor plan are usually a mirror image of one other, but are also available with attached units varying in size and layout. Spacious one bedroom apartment floorplans for independent seniors. This 3 bedroom duplex house plan gives each unit its own outdoor courtyard separated by a privacy wall.each unit gives you 2,226 sq. One bedroom floor plans usually consists of one bedroom, one bathroom, one living room, and one kitchen. Our duplex floor plans are laid out in numerous different ways. With roomsketcher, it's easy to create a beautiful 1 bedroom apartment floor plan.

If you want floor drawing with dimension, you can ask in comment section. One bedroom floor plans usually consists of one bedroom, one bathroom, one living room, and one kitchen. This is a 5 bedroom duplex house. In front of the this 5 bedroom duplex house design, 5 bhk house design, 5 bedroom home design plans video a large car parking provided to park 3 cars and small compact swimming pool is. The duplex hose design gives an estate look and feel in little territory.

5 Bed 2 Bath Duplex House Plans 3 X 2 Bedroom Duplex Plans Etsy
5 Bed 2 Bath Duplex House Plans 3 X 2 Bedroom Duplex Plans Etsy from i.etsystatic.com
Duplexes often come at an affordable price and make a great choice for a first home investment. This is a 5 bedroom duplex house. One bedroom house plans also work for guest houses or pool houses. There is nothing too fancy about one bedroom floor plan, because simplicity is the key. These one story duplex house plans. The duplex hose design gives an estate look and feel in little territory. Here you will find the collection of trendy drummond house plans duplex. The two units of a duplex floor plan are usually a mirror image of one other, but are also available with attached units varying in size and layout.

The duplex hose design gives an estate look and feel in little territory.

This 3 bedroom duplex house plan gives each unit its own outdoor courtyard separated by a privacy wall.each unit gives you 2,226 sq. Select each photo to see a larger image of the layout, and check out the cottage, lodge, duplex, and manor house styles in our community. All apartments boast spacious layouts, generous and bright interiors, balconies and modern conveniences. Duplexes often come at an affordable price and make a great choice for a first home investment. We pay up to $2,000 in closing costs! Staircase headroom + overhead tank. Spacious one bedroom apartment floorplans for independent seniors. The two units of a duplex floor plan are usually a mirror image of one other, but are also available with attached units varying in size and layout. Duplex house plans with 3 bedrooms per unit. This is a 5 bedroom duplex house. With roomsketcher, it's easy to create a beautiful 1 bedroom apartment floor plan. These one story duplex house plans. The collection of 3, 4 & 5 bedroom apartments and penthouses at one palm by omniyat boasts of impressive floor plans that in a way present a new perspective of living.

3 bedroom/ 1.5 bath living area= 2186 sq. In front of the this 5 bedroom duplex house design, 5 bhk house design, 5 bedroom home design plans video a large car parking provided to park 3 cars and small compact swimming pool is. Drawing accommodates architectural ground and first floor plan. Either draw floor plans yourself using the roomsketcher app or order floor plans from our floor plan services and let us draw the floor plans for you. Of living space.expansion possibilities abound on the second floor.

New House Plans Duplex Bath Ideas Duplex Floor Plans Cottage Floor Plans Duplex House Plans
New House Plans Duplex Bath Ideas Duplex Floor Plans Cottage Floor Plans Duplex House Plans from i.pinimg.com
Either draw floor plans yourself using the roomsketcher app or order floor plans from our floor plan services and let us draw the floor plans for you. Different duplex plans often present different bedroom configurations. In front of the this 5 bedroom duplex house design, 5 bhk house design, 5 bedroom home design plans video a large car parking provided to park 3 cars and small compact swimming pool is. 3 bedroom/ 1.5 bath living area= 2186 sq. See how we're revamping the duplex floor plan to add more bedroom, more bathrooms, and more functional and functional features (think laundry behind cute so we're back today with some floor plans to show you exactly what we intend to do. Select each photo to see a larger image of the layout, and check out the cottage, lodge, duplex, and manor house styles in our community. This is a 5 bedroom duplex house. Duplex house plans, floor plans & designs.

House plans sample on 30×40 | elevations concept design 30×40.

Each plan is designed with you in mind. All apartments boast spacious layouts, generous and bright interiors, balconies and modern conveniences. This is a 5 bedroom duplex house. Duplex home plan with european flair. This allows you to develop more lots for other things such as garages and gardens. We pay up to $2,000 in closing costs! Autocad drawing of a duplex independent house shows space planning in plot size 30'x65'. Diverse accommodation on offer the site accommodates one to three bedroom apartments. Duplex house plans, floor plans & designs. House plans sample on 30×40 | elevations concept design 30×40. View floor plans, photos, and community amenities. Staircase headroom + overhead tank. Order online with free standard shipping.

Posting Komentar

0 Komentar